>
Мы в соцсетях:
сертифицированный
партнёр

Атмосфера 24

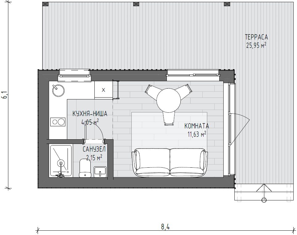
Общая площадь: 55.62 м²
Площадь помещений дома: 24.59 м²
Площадь террас и крылец: 25,95 м²
Размер: 6х8,3 м
Количество спален: 1
Цена*
3 050 000 ₽
Общая площадь: 55.62 м²
Площадь помещений дома: 24.59 м²
Площадь террас и крылец: 25,95 м²
Размер: 6х8,3 м
Количество спален: 1
АТМОСФЕРА 24 — дом с промежуточным этажом — мезонином. К дому примыкает большая угловая терраса. На первом этаже — гостиная, столовая, кухня, санузел. За счет увеличенной высоты здания уютное спальное место находится на другом уровне — над кухней и санузлом, а в зоне гостиной — высокие потолки и панорамные окна. В доме достаточно места для 5 человек.Наслаждайтесь природными запахами, которые вас окружают: озоновым запахом надвигающейся грозы, петрикором — запахом летнего дождя, бодрящим запахом морозного воздуха, целебным смолистым сосновым ароматом, запахом опавшей осенней листвы и мха, запахом травы и цветов и прохладным и влажным запахом раннего утра

Идеи оформления интерьера

Что включено в комплектацию

*Окончательная цена на проект формируется исходя из условий: модель проекта, опции проекта, условий оплаты и места отгрузки. Данная информация о проекте, его цене носит исключительно информационный характер и ни при каких условиях не является публичной офертой, определяемой положениями ч. 2 ст. 437 Гражданского кодекса Российской Федерации.
Использование файлов cookies
Этот веб-сайт использует файлы cookie, которые необходимы для технической работы веб-сайта.

Мы используем файлы cookie в соответствии с Политикой конфиденциальности и Политикой использования cookies.
Нажимая кнопку «Принимаю», Вы даете ИП Ларионова Алена Витальевна согласие на обработку Ваших персональных данных в целях совершенствования нашего веб-сайта, а также повышения удобства его использования.
Запретить использование cookies Вы можете самостоятельно в настройках Вашего браузера.

ПодробнееПринимаю
Всегда на связи
Получить консультацию: