>
Мы в соцсетях:
сертифицированный
партнёр

Атмосфера 39

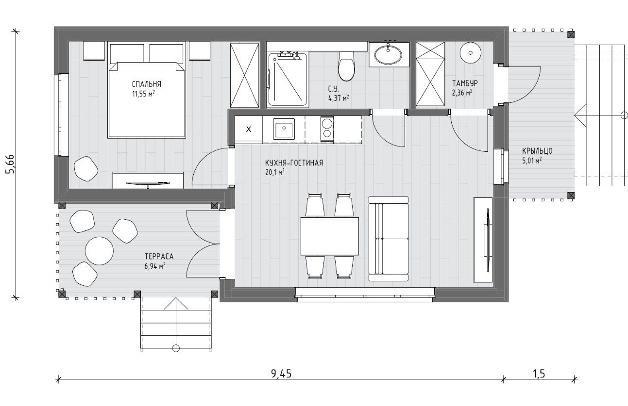
Общая площадь: 50,33 м²
Площадь помещений дома: 38,38 м²
Площадь террас и крылец: 11,95 м²
Размер: 5,66х10.95 м
Количество спален: 1
Цена*
3 800 000 ₽
Общая площадь: 50,33 м²
Площадь помещений дома: 38,38 м²
Площадь террас и крылец: 11,95 м²
Размер: 5,66х10.95 м
Количество спален: 1
Эффектный одноэтажный угловой дом с террасой под перголой и крыльцом с навесом. Теплая площадь дома очень комфортная и не будет стеснять — 38,38 м². Внутри есть кухня-гостиная с выходом на террасу, санузел, прихожая-тамбур, спальня. Уютная терраса с двух сторон защищена стенами дома. Особенностью проекта является то, что он накрыт односкатной крышей, а выглядит, как дом с плоской кровлей, из-за выравнивающих высоту здания парапетов. На фасаде использованы только вертикальные и горизонтальные линии. Здесь будет удобно холостяку, семейной паре любого возраста и родителям с детьми.Мы тонем в городской суете и ежедневной рутине. Даже тем, кто не представляет себя без городской жизни, иногда нужен отдых и перезагрузка. Ощутить себя заново можно в глэмпингах и парк - отелях, которые открываются в самых живописных местах нашей страны: на берегу моря, в тайге, у реки, в горах, на озерах, в степи. Найдите свое место. Такое, где именно вам будет хорошо и спокойно, где вы выспитесь и отдохнете, и накопившиеся пробле

Идеи оформления интерьера

Что включено в комплектацию

*Окончательная цена на проект формируется исходя из условий: модель проекта, опции проекта, условий оплаты и места отгрузки. Данная информация о проекте, его цене носит исключительно информационный характер и ни при каких условиях не является публичной офертой, определяемой положениями ч. 2 ст. 437 Гражданского кодекса Российской Федерации.
Использование файлов cookies
Этот веб-сайт использует файлы cookie, которые необходимы для технической работы веб-сайта.

Мы используем файлы cookie в соответствии с Политикой конфиденциальности и Политикой использования cookies.
Нажимая кнопку «Принимаю», Вы даете ИП Ларионова Алена Витальевна согласие на обработку Ваших персональных данных в целях совершенствования нашего веб-сайта, а также повышения удобства его использования.
Запретить использование cookies Вы можете самостоятельно в настройках Вашего браузера.

ПодробнееПринимаю
Всегда на связи
Получить консультацию: