>
Мы в соцсетях:
сертифицированный
партнёр

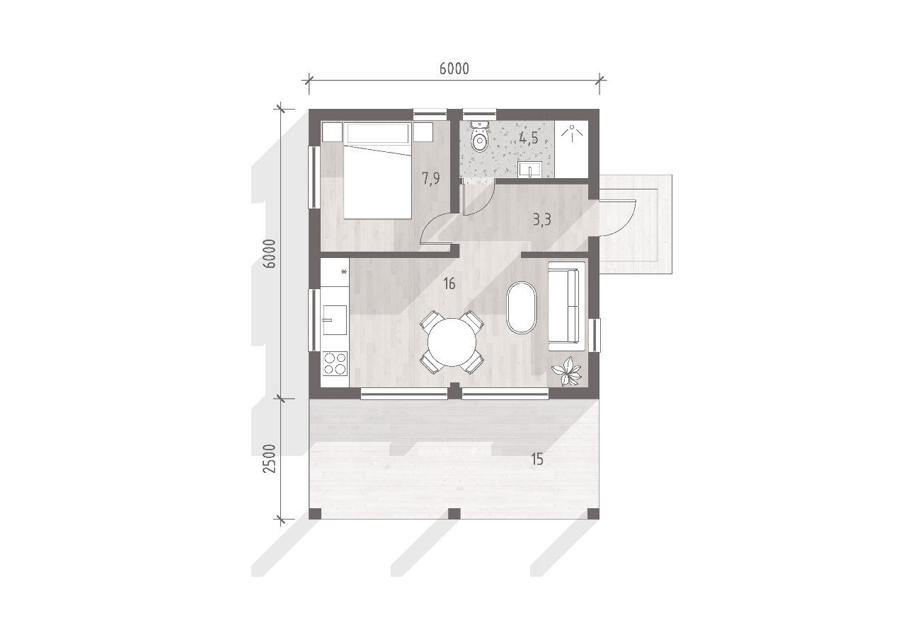
Сканди 36 — каркасно-модульный дом 36 м² | 6×6 м

Площадь дома - 36 м²
Дом: ширина - 6м; длина - 6м
Вместительная прихожая + большая кухня-гостиная + отдельная спальня
Комфортный санузел с душевой
Цена*
2 700 000 ₽
Площадь дома - 36 м²
Дом: ширина - 6м; длина - 6м
Вместительная прихожая + большая кухня-гостиная + отдельная спальня
Комфортный санузел с душевой
Просторный модульный дом площадью 36 м² и размером 6 × 6 м идеально подходит для семьи из 3–4 человек. Планировка позволяет разместить две спальни, кухню-гостиную и санузел. Панорамные окна и лаконичный фасад в скандинавском стиле подчеркнут современный характер дома. Срок установки — от 3 до 5 дней.
Рационально
36 м² и габариты 6×6 м — достаточно места для хранения, домашних дел и отдыха всей семьёй, идеальный вариант для загородной жизни.
Атмосферно
Двускатная крыша с высотой потолков 2,7 м дарит ощущение простора, а панорамные окна наполняют пространство естественным светом.
Эстетично
Ламинация входной двери в цвет фасада и аккуратная деревянная отделка — внимание к каждой детали дома в скандинавском стиле.
Сразу живи
Полная инженерная подготовка: разводка под коммуникации, тёплый пол и электропроводка – остаётся только расставить мебель и наслаждаться жизнью.

Комплектация

Дома Prefabia выполнены в современном скандинавском стиле с панорамными окнами, создающими атмосферу света и уюта. Качественное утепление соответствует северным стандартам, обеспечивая тепло и экономию энергии.

Сборка занимает 3–5 дней, доставка и монтаж выполняются в Екатеринбурге и области. Гарантия качества подтверждает надёжность конструкции.

О компании Prefabia

Prefabia — ваш эксперт в модульных домах в Екатеринбурге

Мы создаём удобные и долговечные дома с использованием современных технологий и качественных материалов. Собственное производство позволяет нам контролировать каждый этап — от подготовки до монтажа.

Почему выбирают нас:

  1. Скорость возведения: от одного до пяти дней — и дом готов к жизни.
  2. Надёжность: строгий контроль качества и энергоэффективные решения.
  3. Разнообразие стилей: от классики до скандинавского минимализма, возможность индивидуального проекта.
  4. Полный цикл услуг: доставка, монтаж и отделка «под ключ».
  5. Клиентоориентированность: помощь на каждом шаге, консультации и поддержка.

Связаться с нами просто:
Звоните +7 (343) 343-23-25 или оставьте заявку на сайте — мы поможем выбрать идеальный дом.

Реализованные проекты

Показать все
баня Сканди 30
Свердловская область
Дом Сканди 45
Изоплит, Екатеринбург
баня Сканди 10 (2,5х4м)
Арамиль, Свердловская обл.
Беседка 18 с хозблоком из мини-бруса
Проект реализован партнёром-строителем ДОМ ТехноНиколь
*Окончательная цена на проект формируется исходя из условий: модель проекта, опции проекта, условий оплаты и места отгрузки. Данная информация о проекте, его цене носит исключительно информационный характер и ни при каких условиях не является публичной офертой, определяемой положениями ч. 2 ст. 437 Гражданского кодекса Российской Федерации.
Использование файлов cookies
Этот веб-сайт использует файлы cookie, которые необходимы для технической работы веб-сайта.

Мы используем файлы cookie в соответствии с Политикой конфиденциальности и Политикой использования cookies.
Нажимая кнопку «Принимаю», Вы даете ИП Ларионова Алена Витальевна согласие на обработку Ваших персональных данных в целях совершенствования нашего веб-сайта, а также повышения удобства его использования.
Запретить использование cookies Вы можете самостоятельно в настройках Вашего браузера.

ПодробнееПринимаю
Всегда на связи
Получить консультацию: